Mellmanns Hausbau
Mellmanns Hausbau
  1. Aktuelle Seite:  
  2. Startseite
  3. Tagebuch

Der Rohbau startet

Am Donnerstag war es soweit: Die erste Reihe wurde gemauert! Die Männer von der Maurergemeinschaft Wenings GmbH haben mit der Arbeit begonnen. Am Samstag wurde der Kran gestellt und noch ein paar Reihen dazu gemauert. Am Montag soll es dann richig los gehen!! Hoffen wir, daß das Wetter mit spielt. Drückt uns die Daumen!

 

Tagebuch

Joomla Gallery makes it better. Balbooa.com

 

Weiter geht´s im Obergeschoss!!

 

Tagebuch

Joomla Gallery makes it better. Balbooa.com

 

Details
Geschrieben von: Frederic
Veröffentlicht: 12. November 2023
Zugriffe: 828

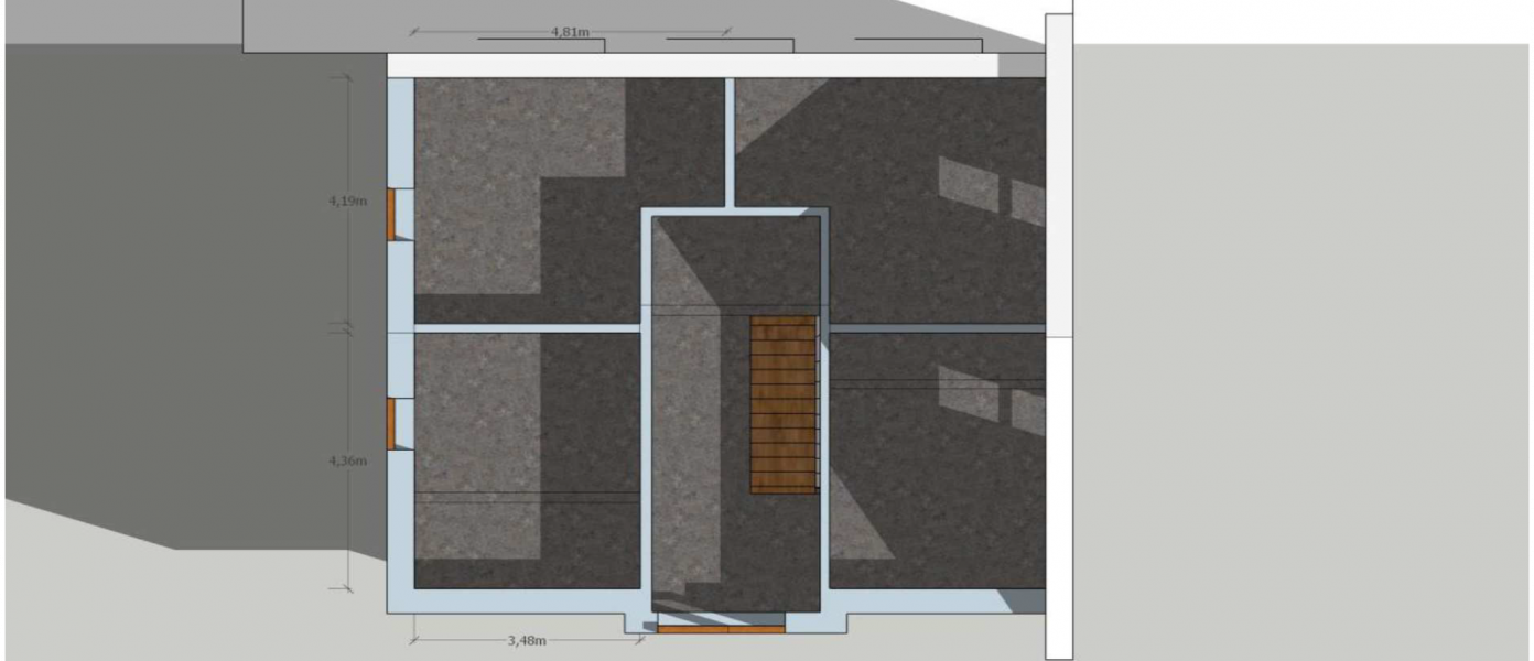
3D Ansichten

So lange wir auf die Rohbauer warten und hoffen das es nun schnell weiter geht, vertreiben wir uns die Zeit mit ein paar 3D Bildern von unserem Traum vom Haus :-)

 

Tagebuch

Joomla Gallery makes it better. Balbooa.com

Details
Geschrieben von: Frederic
Veröffentlicht: 07. November 2023
Zugriffe: 692

Fertigstellung der Erdarbeiten

Die Erdbauer haben ihre Arbeiten beendet. Die Rohre für Regen und Abwasser sind gelegt, der Schacht für die Rückstauklappe gesetzt, die Zisterne ist verbuddelt und alles wurde sachgemäss an den Übergabeschacht für das Abwasser angeschlossen. Es wurde alles verfüllt und ein Stellplatz für den Kran geschottert und verdichtet.

Danke an Herrn Müller und sein Team für den tollen Job!!

 

Tagebuch

Joomla Gallery makes it better. Balbooa.com

Details
Geschrieben von: Frederic
Veröffentlicht: 07. November 2023
Zugriffe: 724

Der Keller

Nun ist es soweit. Der Keller steht!! Die Firma Glatthaar hat den Keller in gefühlter Rekordzeit aufgestellt und betoniert. Unter der Leitung des Projektleiters Herrn Färber lief das Ganze wie am Schnürchen. Wir konnten uns entspannt zurücklehnen und den Aufbau genießen. Die Männer der beiden eingesetzten Kolonnen haben ihr Handwerk verstanden und auch dem Kranführer, Betonpumpenführer den Fahrern der LKW / Betonmischer und wer sonst noch alles beteiligt war möchten wir für einen, aus unserer Sicht reibungslosen Ablauf danken.

Weiter geht es dann bald mit den verbleibenden Tiefbauarbeiten (Verschütten, Zisterne einbauen, Rohre anschließen). Bis dahin! 

 

Tagebuch

Joomla Gallery makes it better. Balbooa.com

   

Details
Geschrieben von: Frederic
Veröffentlicht: 29. September 2023
Zugriffe: 764

Die Bodenplatte

Die Fa. Glatthaar Keller schickte uns am Montag den 18.09. drei ihrer Mitarbieter. Die Männer waren wirkliche Profis und hatten nachdem sie am Morgen mit der Schalung angefangen hatten am Nachmittag den Beton drin. Das ging mal schnell.

 

Tagebuch

Verschalung

Joomla Gallery makes it better. Balbooa.com

Details
Geschrieben von: Frederic
Veröffentlicht: 21. September 2023
Zugriffe: 749

Die Treppe

Es war am Montag dem 11.09 als klar wurde, dass wir auf jeden Fall eine Art Treppe oder Rampe brauchen würden und der Termin für die Bodenplatte bereits am Montag drauf ist. Unser Tiefbauer hatte mir erklärt er habe keine Zeit mehr diese Woche und so blieb uns nicht Anderes als die Dinge selbst in die Hand zu nehmen und ihnen eine Treppe zu bauen….eine Treppe so schön wie sie noch nie ein Mensch gesehen hat…….eine Treppe so…also bekommen haben sie diese hier.

Tagebuch

Joomla Gallery makes it better. Balbooa.com

Details
Geschrieben von: Frederic
Veröffentlicht: 21. September 2023
Zugriffe: 703

Es geht los!!

So mittlerweile ist dann doch seit dem letzten Eintrag einiges an Zeit verstrichen. Nicht das nichts passiert wäre aber dies kann ich auch kurz an dieser Stelle erzählen.

Wir hatten zwischenzeitlich die Bemusterung und unser Bauantrag wurde bewilligt. Es gab etliche Gespräche mit der Stadt, es wurden Antrage zum Anschluss an Strom etc. gestellt. Insgesamt eine ganze Menge an „Kleinigkeiten“ die da zu tun waren.

Auf Grund von schlechtem Wetter (hier hat es die letzten drei Wochen fast ununterbrochen geregnet.) und anderen Umständen ging es aber in den letzten Tagen dann unerwartet schnell, so dass -----tattaaaa---- heute Herr Müller von den Erdbauern mit den Erdarbeiten begonnen hat. Die nächsten Tage soll das Wetter jetzt dann doch mal schön werden, dann dürfte es mit dem Aushub recht schnell gehen.

Was ein Meilenstein, endlich geht es los!!

 

Tagebuch

Joomla Gallery makes it better. Balbooa.com

 

 

Tagebuch

Joomla Gallery makes it better. Balbooa.com

 

Details
Geschrieben von: Frederic
Veröffentlicht: 09. August 2023
Zugriffe: 740

Erarbeitung des Bauantrags

Als nächstes stand nun an, zusammen mit den von MHM gewählten Architekten unser Konzept weiter auszuarbeiten, zu konkretisieren und einen Bauantrag zur Einreichung beim Bauamt zu erarbeiten. Wir mussten, bedingt durch Bauvorschriften etc. noch einige wenige Anpassungen an unserem Konzept vornehmen und mittendrinn dachten wir uns, dass ein zweites Bad für die Mädchen ja eventuell auch ganz toll wäre.

So haben wir mit der Hilfe des Architektenbüros Meier & Missbichler aus Koblenz, unser Projekt soweit konkretisiert, dass wir im Januar 2023 unseren Bauantrag einreichen konnten. Wir möchten uns an dieser Stelle auch bei oben genannten Architekten, insbesondere der für uns zuständigen Frau Weyrauch, herzlich bedanken. Die Zusammenarbeit erwies sich als sehr kompetent, hilfsbereit und unkompliziert. https://www.architekten-mm.de/     

 

Tagebuch

Dachgeschoss

Bauantrag

Erdgeschoss

Bauantrag

Keller

Bauantrag

Joomla Gallery makes it better. Balbooa.com

Details
Geschrieben von: Frederic
Veröffentlicht: 27. Januar 2023
Zugriffe: 786

Auswahl des Generalunternehmens

Da ein freistehendes Haus mit zwei Etagen nun mal keine Doppelhaushälfte mit drei Etagen ist, sind wir also dann mit unserer Vorabplanung wiederum an eine ganze Menge Baufirmen herangetreten um uns Angebote zum Bau unseres Entwurfs anfertigen zu lassen. Die Erfahrungen die man hierbei sammelt und was man über die einzelnen Firmen und deren Philosophien, die Motivation des Vertriebs etc. lernt ist schon enorm, soll aber hier nicht thematisiert werden. Nur so viel, es war wirklich alles dabei von ganz schwach bis ganz stark.

Die Auswahl unter den besten drei Angeboten fiel nicht gerade leicht. Sowohl waren die Angebote recht ähnlich und die jeweiligen Vertriebler sehr vertrauenserweckend und sympathisch. Es war dann gar nicht so einfach, denen die das Rennen nicht machten dies zu sagen, jedoch reagierten natürlich alle mit der nötigen Professionalität.

Das Rennen machte dann aber aus verschiedenen Gründen die Fa. MHM aus Mendig im der Eifel. Der angebotene Preis passte und die Bauleistungsbeschreibung ist einfach Top. Wir hatten bei dem Konzept einfach ein gutes Gefühl. https://dasmassivhaus.de

Die hiesige Ansprechpartnerin Frau Sudhoff kannten wir bereits. Diese hatte sich Jahre zuvor schon bemüht, hat mit uns Grundstücke besichtigt und uns ein zu 99% fertiges MHM Haus hier in der Gegend besichtigen lassen.

Wenige Zeit später unterschrieben wir den Bauvertrag, die Würfel waren also gefallen und wir freuen uns nun auf den Start. 

Details
Geschrieben von: Frederic
Veröffentlicht: 27. Januar 2023
Zugriffe: 783

Weitere Vorabplanung

Die Vorplanung ging auf Basis der ersten Entwürfe von Wolf Krug und mit dessen Hilfe weiter. Es kamen Ideen hinzu und es wurden andere verworfen. Dieser kreative Prozess hat uns viel Spaß gemacht. Diese sehr frühen Planungen kamen auch den endgültigen Plänen bereits sehr nahe auch wenn wir dann aus verschiedenen Gründen noch ein paar Änderungen machten.  

 

Tagebuch

Joomla Gallery makes it better. Balbooa.com

Details
Geschrieben von: Frederic
Veröffentlicht: 27. Januar 2023
Zugriffe: 865

Erster Entwurf

Jetzt galt es uns zu überlegen wie unser Haus unter Berücksichtigung der Größe des Grundstückes und den Vorgaben der Stadt aussehen könnte. Mir fiel ein, dass unser lieber Freund und Nachbar Wolf Architekt ist und ich fragte ihn, ob er ein paar Ideen dazu habe. Sehr zu unserem Glück erstellte er eine komplette Vorabplanung für uns und brachte tolle Ideen und Anregungen ein. So entstand sehr schnell eine erste Version eines Hauses, welches voll und ganz auf unsere Wünsche und Bedürfnisse innerhalb des Machbaren zugeschnitten war.

Wir möchten uns an dieser Stelle ausdrücklich bei Herrn Wolf Krug für seine unendlich hilfreiche Unterstützung in dieser Phase unseres Projektes bedanken.

Danke Wolf

 

Tagebuch

Joomla Gallery makes it better. Balbooa.com

Details
Geschrieben von: Frederic
Veröffentlicht: 24. Januar 2023
Zugriffe: 828

Erste Schritte

Nach gefühlt ewiger Suche, inklusive Besichtigung etlicher Grundstücke und Häuser, war es im Sommer 2021 so weit; wir bekamen von der Stadtverwaltung Gross-Umstadt die Nachricht, dass sie uns ein Grundstück im geplanten Neubaugebiet im Ortsteil Semd anbieten könne. Die Freude war riesig, denn wir hatten uns dafür zwar beworben, jedoch eigentlich wenig Hoffnung in die Auswahl zu kommen, denn es gibt ein ausgeklügeltes Punktesystem und die Liste der Bewerber war lang.

Nach der Freude kam die erste kleine Ernüchterung; das angebotene Grundstück (#4) war recht klein und es war zur Bebauung mit einer Doppelhaushälfte vorgesehen. Egal, frei nach dem Motto von Großvater Karl "lieber eine Laus im Pott als gar kein Fleisch" nahmen wir das Angebot an und machten uns an die Planung. Wir holten Angebote ein, verglichen diese (nach unserem ausgeklügelten Punktesystem) und standen kurz vor einer Entscheidung, doch dann hieß es plötzlich "Kommando zurück" denn sehr zu unserer Freude bot die Stadt uns dann doch ein größeres Grundstück (#18) für ein freistehendes Haus an.

Wir schlugen sofort zu.

Tagebuch

Wohin?

Wo geht´s hin?

Lageplan

Planung des Baugebietes

Joomla Gallery makes it better. Balbooa.com

 

 

Details
Geschrieben von: Frederic
Veröffentlicht: 22. Januar 2023
Zugriffe: 937

Willkommen bei unserem Hausbautagebuch

hier ensteht das Hausbautagebuch der Familie Mellmann. Wir werden es mit der Zeit füllen und einen chronologischen Überblick über unser Projekt "Traumhaus" anlegen.

Dabei stehen immer die neusten Beiträge oben

 

Viel Spass beim Lesen.

 

Eure Mellmanns

 

Zum Tagebuch

Details
Geschrieben von: Frederic
Veröffentlicht: 22. Januar 2023
Zugriffe: 1233

Main Menu

  • Home
  • Tagebuch